Объект снят с публикации

Таунхаус в Миль Пальмерас 71 м2 №BL201027B4BD5

179 000 €
Участок
23 м2
Объект
71 м2
До моря
920 м
Линия
>5
Спален
2
Санузлов
2
Смотреть карту

Новый жилой комплекс в Миль Пальмерас включает в себя 18 таунхаусов построенных вокруг общей территории с красивым садом и бассейном.

Детали отделки каждого таунхауса включают:

  • армированная конструкция стен;

  • фасад отделан панелями с воздушной камерой (для лучшей тепло- и звукоизоляции помещений);

  • окна из ПВХ с двойным остеклением типа Climalit;

  • пол - керамогранитная плитка, стены кухни и ванной выложены керамической плиткой;

  • в спальнях и гостиной стены окрашены краской;

  • в кухне готовы подвесные и напольные шкафы, столешница Compac или аналогичная, вытяжка, электрическая керамическая плита и духовка;

  • сантехника из санфаянса, большие душевые поддоны из сверхпрочной пластмассы, инсталляция;

  • душевые экраны;

  • однорычажные смесители для ванной;

  • межкомнатные двери белого цвета;

  • встроенные шкафы;

  • предварительная установка кондиционирования воздуха.

Дата сдачи объекта январь 2022 года.

Прямое предложение от застройщика. Возможен онлайн-резерв объекта у застройщика без поездки в Испанию, а также рассрочка платежа до момента сдачи объекта в эксплуатацию. Также возможно получение ипотечного кредита. Планировки, доступность и актуальную стоимость объектов запрашивайте у наших менеджеров по продажам.

Комнат всего
3
Спален
2
Санузлов
2
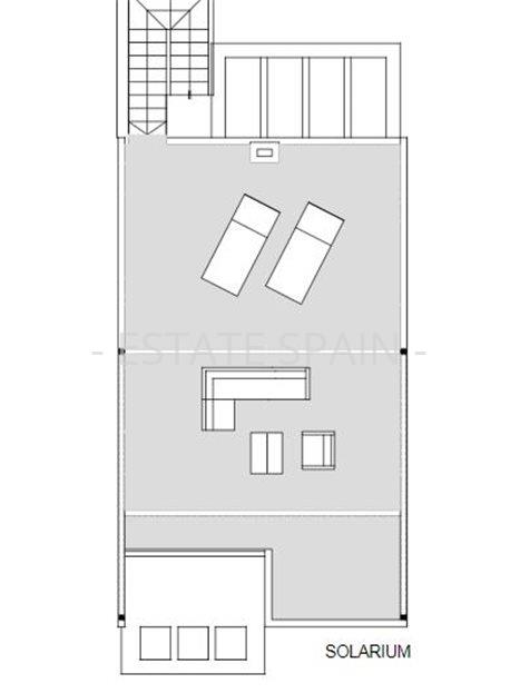
Терраса
Открытая, Крытая
Сад, зеленая территория
Сад
Объект
71 м2
Жилая
57.82 м2
Подвал
67.42 м2
Участок
23 м2
Терраса
9 м2
Состояние
Новостройки
Год постройки
2022
Месяц постройки
Январь
Ремонт
Хорошее состояние
Обстановка
Встроенная мебель, Полностью оборудованная кухня
Покрытие пола
Керамика, Керамогранит
Вид из окна
На сад, На город, На бассейн, Панорамный, Во внутренний двор
Безопасность
Закрытая территория
Бассейн
Общий
Количество бассейнов
1
  • Таунхаус в Миль Пальмерас 71 м2 №BL201027B4BD5  - Продажа - 1 mobile
  • Таунхаус в Миль Пальмерас 71 м2 №BL201027B4BD5  - Продажа - 2 mobile
  • Таунхаус в Миль Пальмерас 71 м2 №BL201027B4BD5  - Продажа - 3 mobile
  • Таунхаус в Миль Пальмерас 71 м2 №BL201027B4BD5  - Продажа - 4 mobile
  • Таунхаус в Миль Пальмерас 71 м2 №BL201027B4BD5  - Продажа - 5 mobile
  • Таунхаус в Миль Пальмерас 71 м2 №BL201027B4BD5  - Продажа - 6 mobile
  • Таунхаус в Миль Пальмерас 71 м2 №BL201027B4BD5  - Продажа - 7 mobile
  • Таунхаус в Миль Пальмерас 71 м2 №BL201027B4BD5  - Продажа - 8 mobile
  • Таунхаус в Миль Пальмерас 71 м2 №BL201027B4BD5  - Продажа - 9 mobile
  • Таунхаус в Миль Пальмерас 71 м2 №BL201027B4BD5  - Продажа - 10 mobile
  • Таунхаус в Миль Пальмерас 71 м2 №BL201027B4BD5  - Продажа - 11 mobile
  • Таунхаус в Миль Пальмерас 71 м2 №BL201027B4BD5  - Продажа - 12 mobile
  • Таунхаус в Миль Пальмерас 71 м2 №BL201027B4BD5  - Продажа - 13 mobile
  • Таунхаус в Миль Пальмерас 71 м2 №BL201027B4BD5  - Продажа - 14 mobile
  • Таунхаус в Миль Пальмерас 71 м2 №BL201027B4BD5  - Продажа - 15 mobile
  • Таунхаус в Миль Пальмерас 71 м2 №BL201027B4BD5  - Продажа - 16 mobile
Расстояние до моря:
920 м
Линия от моря:
>5
Опубликован : 27.10.2020
Обновлен : 02.03.2022

Инна Полуянова
Денис Харац

Отдел продаж

Запросить информацию

Отправляя это сообщение, Вы принимаете условия
Пользовательского соглашения
Поделиться