Бунгало в Сан-Мигель-де-Салинас 164 м2 №BL246100110A

239 900 €
Участок
65 м2
Объект
164 м2
До моря
8600 м
Линия
>5
Спален
3
Санузлов
2
Смотреть карту

Новый жилой комплекс в Сан-Мигель-де-Салинас, Коста Бланка.

Комплекс предлагает два общих бассейна (взрослый и детский) и сад, идеально подходящие для отдыха и принятия солнечных ванн как для детей, так и для взрослых.

Расслабьтесь и познакомьтесь с соседями у общественного бассейна или исследуйте очаровательные улицы и достопримечательности этого района. Наслаждайтесь уютной атмосферой круглый год, без суеты массового туризма. Резиденция идеально подходит как для летнего, так и для зимнего проживания.

Благодаря легкому доступу к аэропортам, пляжам, торговым центрам и полям для гольфа, это идеальное место для жизни или посещения. Он известен своими красивыми пейзажами и спокойной атмосферой, что делает его привлекательным местом как для туристов, так и для местных жителей.

Бунгало на нижнем этаже располагают частным садом, а апартаменты на верхнем этаже располагают солярием на крыше. На первом этаже можно выбрать вариант с 2 или 3 спальнями.

Доступные варианты:

Угловое бунгало нижнего этажа:

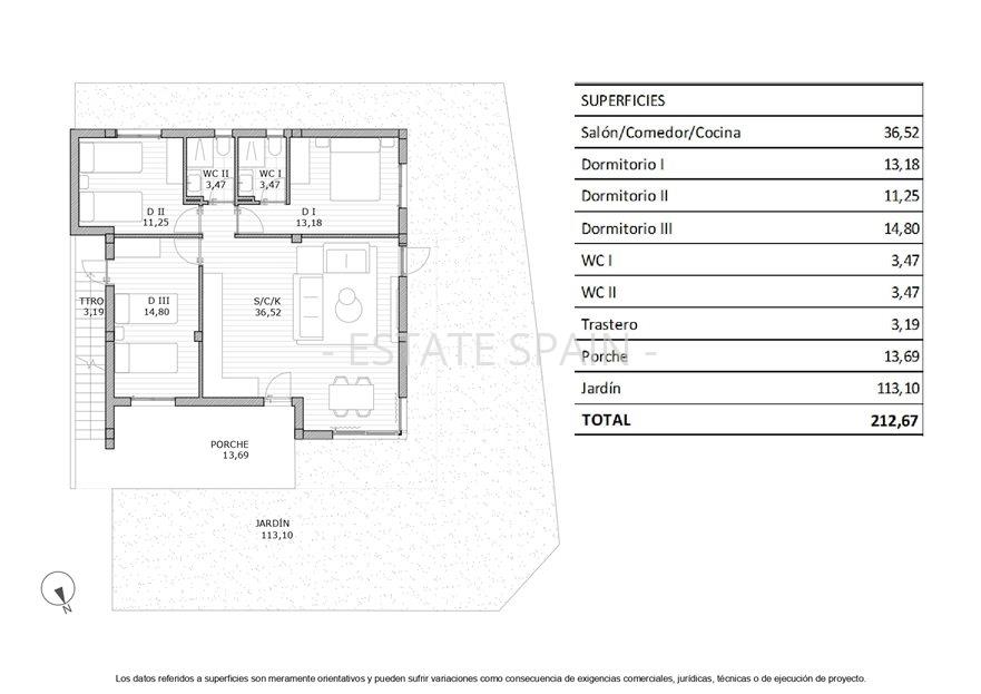
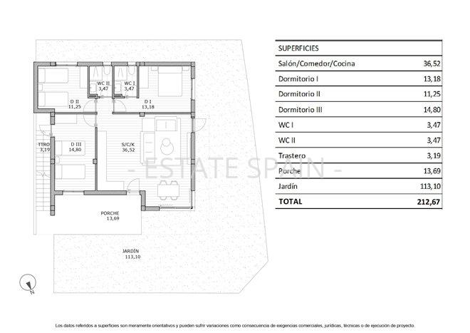
  • 3 спальни, 2 ванные комнаты, общая площадь от 149,59 до 212,67 м2, жилая площадь 82,69 м2, веранда 13,69 м2, сад от 49,06 до 113,1 м2. Цена от 239 900 до 264 900 евро.

Дата сдачи: сентябрь 2025 г. - февраль 2026 г. в зависимости от фазы строительства .

Для любителей пляжного отдыха есть хороший доступ к одним из самых красивых пляжей региона. Пляжи, гавань и набережная Торревьехи, а также пляжи Ориуэла Коста находятся в 15 минутах езды. Кроме того, популярный торговый центр La Zenia Boulevard находится в 10 км. Загородный гольф-клуб Las Colinas находится примерно в 10 минутах езды. До аэропорта Аликанте можно добраться за 45 минут, а до аэропорта Мурсии — всего 35 минут. Также недалеко от комплекса находятся рестораны, бары, супермаркеты, спортивный зал.

Комнат всего
4
Спален
3
Санузлов
2
Сад, зеленая территория
Отдельный сад
Другое
Телевидение, Двойное остекление окон, Бронированная дверь
Объект
164 м2
Жилая
82.69 м2
Участок
65 м2
Сад
64.61 м2
Состояние
Новостройки
Год постройки
2025
Месяц постройки
Сентябрь
Стадия продаж
Продано более 50%
Обстановка
Мебелированная кухня
Покрытие пола
Фарфоровая плитка
Вид из окна
На город
Ориентация
Северо-Восток
Безопасность
Закрытая территория
Бассейн
Общий, Есть
Количество бассейнов
2
  • Бунгало в Сан-Мигель-де-Салинас 164 м2 №BL246100110A  - Продажа - 1 mobile
  • Бунгало в Сан-Мигель-де-Салинас 164 м2 №BL246100110A  - Продажа - 2 mobile
  • Бунгало в Сан-Мигель-де-Салинас 164 м2 №BL246100110A  - Продажа - 3 mobile
  • Бунгало в Сан-Мигель-де-Салинас 164 м2 №BL246100110A  - Продажа - 4 mobile
  • Бунгало в Сан-Мигель-де-Салинас 164 м2 №BL246100110A  - Продажа - 5 mobile
  • Бунгало в Сан-Мигель-де-Салинас 164 м2 №BL246100110A  - Продажа - 6 mobile
  • Бунгало в Сан-Мигель-де-Салинас 164 м2 №BL246100110A  - Продажа - 7 mobile
  • Бунгало в Сан-Мигель-де-Салинас 164 м2 №BL246100110A  - Продажа - 8 mobile
  • Бунгало в Сан-Мигель-де-Салинас 164 м2 №BL246100110A  - Продажа - 9 mobile
  • Бунгало в Сан-Мигель-де-Салинас 164 м2 №BL246100110A  - Продажа - 10 mobile
Расстояние до моря:
8600 м
Линия от моря:
>5
Рядом с объектом:
Спортзал, Бар, Пляж, Поле для гольфа, Магазин, Ресторан, Море, Развитая инфраструктура
Опубликован : 11.06.2024
Обновлен : 16.06.2025

Инна Полуянова
Денис Харац

Отдел продаж

Запросить информацию

Отправляя это сообщение, Вы принимаете условия
Пользовательского соглашения
Поделиться