Участок в Кальвия 285 м2 №COM2579C08A5

1 090 000 €
Участок
714 м2
Объект
285 м2
До моря
700 м
Смотреть карту

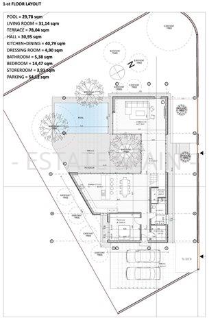
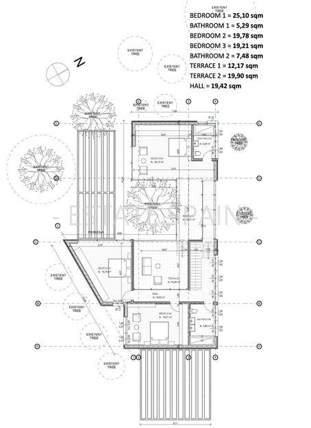
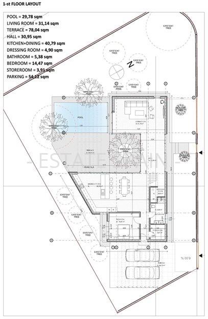
Представляем уникальный участок с готовым архитектурным проектом для строительства современной виллы класса люкс. Участок расположен в престижной локации в El Toro , всего в 400 метрах от побережья, в окружении ресторанов, магазинов и развлекательных заведений, но при этом в тихом районе среди частных вилл. Всего в 200 метрах начинается сосновый лес, а природный парк расположен в 350 метрах, что делает это место идеальным для тех, кто ценит гармонию с природой. В пешей доступности автобусная остановка, детская площадка и уютное кафе. Проект виллы сочетает классические строительные технологии (бетон и кирпич) с современным дизайном. Просторные и светлые помещения, высокие потолки 3 метра, панорамное остекление и открытые террасы создают атмосферу уюта и роскоши. Площадь участка составляет 714 м², общая застроенная площадь – 285 м², жилая – 240 м². В проекте предусмотрены гостиная 31,14 м², кухня-столовая 40,79 м², четыре просторные спальни, три ванные комнаты, гардеробная 4,90 м², кладовая 3,91 м², террасы общей площадью 110,11 м², бассейн 29,78 м² и парковка на два автомобиля 54,12 м². Проект предусматривает сохранение вековых деревьев на участке, а также полное меблирование виллы элитной мебелью. Этот объект – отличное инвестиционное предложение, сочетающее в себе близость к природе, комфорт и городскую инфраструктуру. Стоимость строительства не включена в цену и может быть скорректирована с учетом пожеланий заказчика. Свяжитесь с нами для получения дополнительной информации.

Объект
285 м2
Участок
714 м2
Состояние
Новостройки
  • Участок в Кальвия 285 м2 №COM2579C08A5  - Продажа - 1 mobile
  • Участок в Кальвия 285 м2 №COM2579C08A5  - Продажа - 2 mobile
  • Участок в Кальвия 285 м2 №COM2579C08A5  - Продажа - 3 mobile
  • Участок в Кальвия 285 м2 №COM2579C08A5  - Продажа - 4 mobile
  • Участок в Кальвия 285 м2 №COM2579C08A5  - Продажа - 5 mobile
  • Участок в Кальвия 285 м2 №COM2579C08A5  - Продажа - 6 mobile
  • Участок в Кальвия 285 м2 №COM2579C08A5  - Продажа - 7 mobile
  • Участок в Кальвия 285 м2 №COM2579C08A5  - Продажа - 8 mobile
  • Участок в Кальвия 285 м2 №COM2579C08A5  - Продажа - 9 mobile
  • Участок в Кальвия 285 м2 №COM2579C08A5  - Продажа - 10 mobile
  • Участок в Кальвия 285 м2 №COM2579C08A5  - Продажа - 11 mobile
  • Участок в Кальвия 285 м2 №COM2579C08A5  - Продажа - 12 mobile
  • Участок в Кальвия 285 м2 №COM2579C08A5  - Продажа - 13 mobile
Расстояние до моря:
700 м
Опубликован : 09.07.2025
Обновлен : 09.07.2025

Инна Полуянова
Денис Харац

Отдел продаж

Запросить информацию

Отправляя это сообщение, Вы принимаете условия
Пользовательского соглашения
Поделиться