Вилла в Ла-Манга-дель-Мар-Менор 126 м2 №VL19429120FC

495 950 €
Участок
440 м2
Объект
126 м2
До моря
400 м
Линия
4
Спален
3
Санузлов
3
Смотреть карту

Новая резиденция рядом с Плайя Онда состоит из 16 участков с возможностью строительства 16 различных вилл. У вас есть возможность выбрать участок, может быть площадью от 400 м2 до 800 м2. Также, вы можете выбрать одну из пяти моделей вилл. Модель Джемма, Лагуна Роза и Голубая лагуна, Сильвия и Грета.

Комфортабельный тихий район, где вы сможете насладиться покоем и уединением, находясь при этом, всего в 3 минутах ходьбы от пляжа. Плайя Хонда - это пляж с широкой набережной, расположенный на берегу Мар Менора. Пляж имеет всю необходимую инфраструктуру.

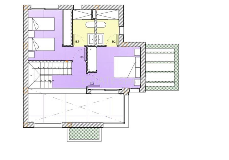
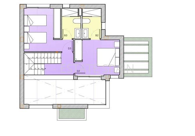
Модель Голубая лагуна построена на 2 этажах, первый этаж - просторная гостиная, совмещенная с кухней открытого типа, спальня, ванная комната; второй этаж - две спальни и две ванные комнаты. Со второго этажа вы попадаете на крышу здания, на оборудованный солярий, с которого открывается потрясающий вид на окрестности. Из гостиной есть прямой выход на террасу в саду. На придомовой территории оборудовано парковочное место, бассейн и зона отдыха.

Подогрев полов в ванных комнатах включен в стоимость!

Ла Манга - это участок земли длиной 21 км, который отделяет Средиземное море от залива Мар Менор. Для любителей активного отдыха на свежем воздухе в Ла Манге есть множество школ водного спорта, больших торговых центров на любой вкус. Рядом находится пляж Кала Реона - одно из самых известных мест для дайвинга на Средиземноморском побережье. Не останутся равнодушными любители пеших прогулок, которые смогут наслаждаться красотами гор Сьерра-Минера на лучших пешеходных маршрутах.

Прямое предложение от застройщика. Возможна рассрочка платежа до момента сдачи объекта в эксплуатацию. Планировки, доступность и актуальную стоимость объектов запрашивайте у наших менеджеров по продажам.

Для покупки доступны виллы на следующих участках:

  • 2 участка площадью 440 м2, 3 спальни, 3 ванных комнаты, цена - 495 950 евро.

Схема оплаты:

Резерв - 6.000€

25% - через 1 месяц

25% - через 30 месяца

50% - после сдачи дома и подписания документов

Информация об оплате
Доступна поэтапная оплата (рассрочка платежа без процентов) от застройщика
Схема оплаты:
Резерв — 6000€
На этапе строительства — 50%
При сдаче объекта — 50%
Комнат всего
4
Спален
3
Санузлов
3
Терраса
Отдельная
Сад, зеленая территория
Сад
Объект
126 м2
Участок
440 м2
Соляриум
45.4 м2
Состояние
Новостройки
Обстановка
Частичная меблировка
Покрытие пола
Керамогранит
Вид из окна
На сад, На бассейн, На море, На город
Безопасность
Закрытая территория
Парковка
Гараж
Количество мест парковки
1
Бассейн
Частный
Количество бассейнов
1
  • Вилла в Ла-Манга-дель-Мар-Менор 126 м2 №VL19429120FC  - Продажа - 1 mobile
  • Вилла в Ла-Манга-дель-Мар-Менор 126 м2 №VL19429120FC  - Продажа - 2 mobile
  • Вилла в Ла-Манга-дель-Мар-Менор 126 м2 №VL19429120FC  - Продажа - 3 mobile
  • Вилла в Ла-Манга-дель-Мар-Менор 126 м2 №VL19429120FC  - Продажа - 4 mobile
  • Вилла в Ла-Манга-дель-Мар-Менор 126 м2 №VL19429120FC  - Продажа - 5 mobile
  • Вилла в Ла-Манга-дель-Мар-Менор 126 м2 №VL19429120FC  - Продажа - 6 mobile
  • Вилла в Ла-Манга-дель-Мар-Менор 126 м2 №VL19429120FC  - Продажа - 7 mobile
  • Вилла в Ла-Манга-дель-Мар-Менор 126 м2 №VL19429120FC  - Продажа - 8 mobile
  • Вилла в Ла-Манга-дель-Мар-Менор 126 м2 №VL19429120FC  - Продажа - 9 mobile
  • Вилла в Ла-Манга-дель-Мар-Менор 126 м2 №VL19429120FC  - Продажа - 10 mobile
  • Вилла в Ла-Манга-дель-Мар-Менор 126 м2 №VL19429120FC  - Продажа - 11 mobile
  • Вилла в Ла-Манга-дель-Мар-Менор 126 м2 №VL19429120FC  - Продажа - 12 mobile
  • Вилла в Ла-Манга-дель-Мар-Менор 126 м2 №VL19429120FC  - Продажа - 13 mobile
  • Вилла в Ла-Манга-дель-Мар-Менор 126 м2 №VL19429120FC  - Продажа - 14 mobile
  • Вилла в Ла-Манга-дель-Мар-Менор 126 м2 №VL19429120FC  - Продажа - 15 mobile
  • Вилла в Ла-Манга-дель-Мар-Менор 126 м2 №VL19429120FC  - Продажа - 16 mobile
  • Вилла в Ла-Манга-дель-Мар-Менор 126 м2 №VL19429120FC  - Продажа - 17 mobile
  • Вилла в Ла-Манга-дель-Мар-Менор 126 м2 №VL19429120FC  - Продажа - 18 mobile
  • Вилла в Ла-Манга-дель-Мар-Менор 126 м2 №VL19429120FC  - Продажа - 19 mobile
  • Вилла в Ла-Манга-дель-Мар-Менор 126 м2 №VL19429120FC  - Продажа - 20 mobile
  • Вилла в Ла-Манга-дель-Мар-Менор 126 м2 №VL19429120FC  - Продажа - 21 mobile
  • Вилла в Ла-Манга-дель-Мар-Менор 126 м2 №VL19429120FC  - Продажа - 22 mobile
  • Вилла в Ла-Манга-дель-Мар-Менор 126 м2 №VL19429120FC  - Продажа - 23 mobile
  • Вилла в Ла-Манга-дель-Мар-Менор 126 м2 №VL19429120FC  - Продажа - 24 mobile
  • Вилла в Ла-Манга-дель-Мар-Менор 126 м2 №VL19429120FC  - Продажа - 25 mobile
  • Вилла в Ла-Манга-дель-Мар-Менор 126 м2 №VL19429120FC  - Продажа - 26 mobile
  • Вилла в Ла-Манга-дель-Мар-Менор 126 м2 №VL19429120FC  - Продажа - 27 mobile
  • Вилла в Ла-Манга-дель-Мар-Менор 126 м2 №VL19429120FC  - Продажа - 28 mobile
  • Вилла в Ла-Манга-дель-Мар-Менор 126 м2 №VL19429120FC  - Продажа - 29 mobile
  • Вилла в Ла-Манга-дель-Мар-Менор 126 м2 №VL19429120FC  - Продажа - 30 mobile
  • Вилла в Ла-Манга-дель-Мар-Менор 126 м2 №VL19429120FC  - Продажа - 31 mobile
  • Вилла в Ла-Манга-дель-Мар-Менор 126 м2 №VL19429120FC  - Продажа - 32 mobile
  • Вилла в Ла-Манга-дель-Мар-Менор 126 м2 №VL19429120FC  - Продажа - 33 mobile
  • Вилла в Ла-Манга-дель-Мар-Менор 126 м2 №VL19429120FC  - Продажа - 34 mobile
  • Вилла в Ла-Манга-дель-Мар-Менор 126 м2 №VL19429120FC  - Продажа - 35 mobile
  • Вилла в Ла-Манга-дель-Мар-Менор 126 м2 №VL19429120FC  - Продажа - 36 mobile
  • Вилла в Ла-Манга-дель-Мар-Менор 126 м2 №VL19429120FC  - Продажа - 37 mobile
Расстояние до моря:
400 м
Линия от моря:
4
Рядом с объектом:
Пляж, Магазин, Ресторан, Остановка, Море, Причал, Развитая инфраструктура, Спортзал, Бар
Опубликован : 29.04.2019
Обновлен : 02.04.2025

Инна Полуянова
Денис Харац

Отдел продаж

Запросить информацию

Отправляя это сообщение, Вы принимаете условия
Пользовательского соглашения
Поделиться