Объект снят с публикации

Вилла в Финестрате 235 м2 №VL19611473DD

685 000 €
Участок
700 м2
Объект
235 м2
До моря
2400 м
Линия
>5
Спален
3
Санузлов
3
Смотреть карту

Новая урбанизация состоит из 5 эксклюзивных современных вилл, предлагающих четыре различных дизайна, каждый из которых имеет свои индивидуальные особенности. Виллы этой модели - это современные виллы, наполненные светом, с частным бассейном и красивыми садами. Они удобно расположены в тихом жилом районе, недалеко от всех услуг и пляжа. В Сьерра-Кортина, Финестрат, в самом сердце прекрасной испанской Коста-Бланки.

Ваша жизнь на этой вилле будет исключительно комфортной и при желании может включать в себя гольф на близлежащих полях, покупки в любом из удобных торговых центров, солнечные ванны на пляже или ужины в любой из близлежащих очаровательных деревень, находящихся поблизости. Различные виды услуг и отдых в нескольких минутах езды:

  • 4 международные школы в 15 минутах;

  • Торговый центр La Marina;

  • 5 * отели: Asia Gardens и Meliá Villa Aitana;

  • Природный заповедник Сьерра Гелада;

  • Винодельня Энрике Мендоса;

  • Гольф поля.

Вилла №18 расположена в Финестрате, в самом сердце прекрасного побережья Коста Бланка, между Средиземным морем и горами Сьерра Кортина.

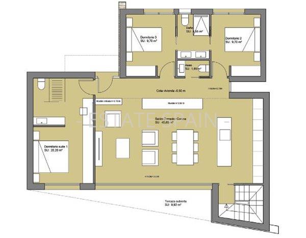
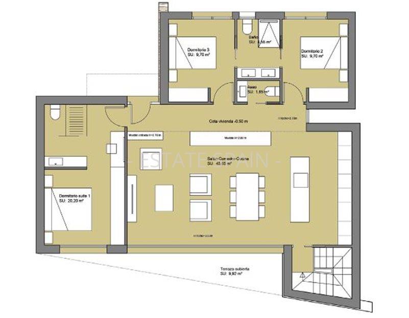
Этот дом с 3 спальнями площадью 125 м2, террасой 50 м2 и 60 м2 застроенной площади в подвале, построен на участке 700 м2. На нижнем этаже прихожая ведет к открытой кухне, гостиной и столовой, соединенной с большой террасой и бассейном. Три спальни, одна из которых с собственной ванной комнатой, а также две ванные комнаты расположены на первом этаже. Гараж и прачечная находятся в подвальном этаже.

Прямое предложение от застройщика. Возможен онлайн-резерв объекта у застройщика без поездки в Испанию. Также возможно получение ипотечного кредита. Планировки, доступность и актуальную стоимость объектов запрашивайте у наших менеджеров по продажам.

Комнат всего
4
Спален
3
Санузлов
3
Терраса
Отдельная
Сад, зеленая территория
Отдельный сад
Объект
235 м2
Участок
700 м2
Терраса
50 м2
Состояние
Новостройки
Год постройки
2019
Обстановка
Частичная меблировка
Покрытие пола
Керамогранит
Вид из окна
На сад, На бассейн, На город
Безопасность
Закрытая территория
Парковка
Паркинг
Количество мест парковки
1
Бассейн
Частный
Количество бассейнов
1
  • Вилла в Финестрате 235 м2 №VL19611473DD  - Продажа - 1 mobile
  • Вилла в Финестрате 235 м2 №VL19611473DD  - Продажа - 2 mobile
  • Вилла в Финестрате 235 м2 №VL19611473DD  - Продажа - 3 mobile
  • Вилла в Финестрате 235 м2 №VL19611473DD  - Продажа - 4 mobile
  • Вилла в Финестрате 235 м2 №VL19611473DD  - Продажа - 5 mobile
  • Вилла в Финестрате 235 м2 №VL19611473DD  - Продажа - 6 mobile
  • Вилла в Финестрате 235 м2 №VL19611473DD  - Продажа - 7 mobile
  • Вилла в Финестрате 235 м2 №VL19611473DD  - Продажа - 8 mobile
  • Вилла в Финестрате 235 м2 №VL19611473DD  - Продажа - 9 mobile
  • Вилла в Финестрате 235 м2 №VL19611473DD  - Продажа - 10 mobile
  • Вилла в Финестрате 235 м2 №VL19611473DD  - Продажа - 11 mobile
  • Вилла в Финестрате 235 м2 №VL19611473DD  - Продажа - 12 mobile
  • Вилла в Финестрате 235 м2 №VL19611473DD  - Продажа - 13 mobile
  • Вилла в Финестрате 235 м2 №VL19611473DD  - Продажа - 14 mobile
  • Вилла в Финестрате 235 м2 №VL19611473DD  - Продажа - 15 mobile
  • Вилла в Финестрате 235 м2 №VL19611473DD  - Продажа - 16 mobile
  • Вилла в Финестрате 235 м2 №VL19611473DD  - Продажа - 17 mobile
  • Вилла в Финестрате 235 м2 №VL19611473DD  - Продажа - 18 mobile
  • Вилла в Финестрате 235 м2 №VL19611473DD  - Продажа - 19 mobile
  • Вилла в Финестрате 235 м2 №VL19611473DD  - Продажа - 20 mobile
Расстояние до моря:
2400 м
Линия от моря:
>5
Опубликован : 11.06.2019
Обновлен : 08.07.2021

Инна Полуянова
Денис Харац

Отдел продаж

Запросить информацию

Отправляя это сообщение, Вы принимаете условия
Пользовательского соглашения
Поделиться