Вилла в Марбелье 1050 м2 №VL21125802DF

Новый комплекс представляет собой восемь современных вилл в закрытом жилом пространстве в престижной урбанизации Аталайя-де-Рио-Верде.
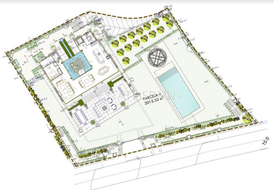
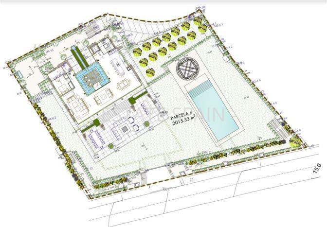
Все дома имеют более 1.000 м2 застроенной площади, с участком более 2.000 м2 и красивыми ландшафтными садами.
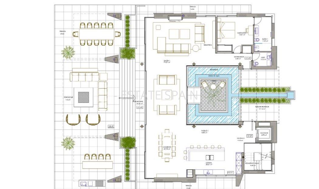
У этих 8 вилл много общего, но каждая уникальна по своей архитектуре и имеет отличительные особенности. Крышки, террасы и патио, формы бассейнов и зон отдыха, растительность в садах различаются - так что вы можете выбрать виллу, которая вам больше всего подходит.
Чистый современный фасад, просторные спальни, огромные террасы, дизайнерский открытый бассейн, гидромассажная ванна на крыше и индивидуальная интеллектуальная домашняя система - новая концепция роскоши и отличный выбор в качестве второго дома в прекрасном климате.
Исключительная урбанизация с круглосуточной охраной, массивной зеленой зоной, пешеходной зоной и великолепным видом на окрестности.
Комплекс расположен всего в нескольких минутах ходьбы от знаменитого Пуэрто Бануса. Предлагает своим жителям личный комфорт, безопасность и самое высокое качество жизни.
В продаже:
- 8 вилл различной планировки с 6 спальнями и 6 ванными комнатами, жилая площадь от 1050 м2 до 1132 м2, площадь террас - от 560 м2 до 695 м2, площадь частных участков - от 2011 м2 до 2127 м2, цена вилл от 5 530 000 до 6 025 000 евро.
Дата завершения строительства: 31.08.2022 г.
На текущий момент завершена стадия возведения каркаса. Работы по внутренней отделке планируется закончить во второй половине 2021, отделка будет зависеть от желания будущего владельца конкретного дома.
Запросите больше информации о вилле и планировках у наших менеджеров.