Объект снят с публикации

Вилла в Педрегере 554 м2 №VL213300781A

1 385 000 €
Участок
1412 м2
Объект
554 м2
Спален
6
Санузлов
7

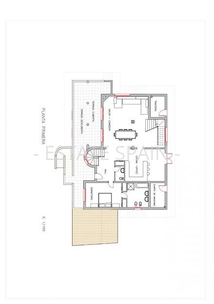
Роскошная вилла на продажу в Ла Селла - Дения. Как только вы проезжаете автоматические ворота, длинная дорога ведет к этой впечатляющей вилле. Перед домом есть место для парковки нескольких автомобилей. На этом уровне дома мы находим закрытый гараж (30м2). Большая терраса с бассейном (33м2), сад с джакузи и полностью закрытая летняя кухня с баром. В доме есть внутренняя и внешняя лестницы, ведущие на первый и второй этажи. На уровне первого этажа (103 м2) у нас есть главный вход в дом с просторным холлом, 2 спальни с двуспальными кроватями, 1 ванная комната, 1 семейная ванная комната. Машинный зал и складское помещение. Внутренняя лестница ведет на второй этаж (187 м2), где есть 1 холл, 1 гостевой туалет, кухня, гостиная-столовая, 1 спальня с ванной комнатой, большая веранда / терраса (32 м2) с площадкой для барбекю, откуда открывается захватывающий вид. Мы также находим на этом уровне внутреннюю лестницу которая ведёт на второй этаж (122 м2), где расположены 1 холл, 2 спальни с двуспальными кроватями, каждая с собственной ванной комнатой, и 1 главная спальня со своей ванной комнатой и гардеробной. Выход на открытую террасу 44 м2. Год постройки: 2001. Год реновации: 2010. IBI - 716,58 евро в год. Ежегодные общественные расходы составляют ок. 550 евро. ОБОРУДОВАНИЕ: Окна ПВХ, стеклопакеты, москитные сетки и жалюзи. Встроенные шкафы. Кондиционер тепло и холод (сплит), газовое отопление (радиаторы), камин, дизайнерская мебель для ванных комнат сделана вручную из стекла Swarosky. Барбекю, летняя кухня / бар. Автоматический полив, джакузи, автоматические люки. Панорамный вид на окружающие горы, Монго, на поле для гольфа La Sella и на Хавею с далеким видом на море. МЕСТО РАСПОЛОЖЕНИЯ: На возвышенном и солнечном участке в эксклюзивной урбанизации Ла Селла, эта собственность имеет захватывающий панорамный вид на Монго Дении, вид на море вдалеке в Хавеа, вид на всемирно известное 27-луночное поле для гольфа, круглосуточное наблюдение часов и безупречно заботливое сообщество. Вилла La Sella расположенa всего в нескольких минутах езды от центра города Дения, недавно получившего статус Креативного гастрономического города. Это отличное место для знакомства со всем, что может предложить этот район. Бесконечные отличные рестораны, водные виды спорта, верховая езда, одни из лучших полей для гольфа в Европе, исторические здания и захватывающие пейзажи - все это находится в пределах легкой досягаемости. Признанный одним из самых здоровых мест для жизни в Европе, легко понять, почему так много людей делают эту часть Испании своим домом. Имеется отличное воздушное сообщение с рейсами в течение всего года в основные европейские пункты назначения из аэропортов Аликанте и Валенсии, которые находятся чуть более чем в часе езды по автомагистрали.

Комнат всего
7
Спален
6
Санузлов
7
Терраса
Отдельная
Сад, зеленая территория
Отдельный сад
Другое
Прачечная, Кладовка
Объект
554 м2
Участок
1412 м2
Состояние
Вторичная недвижимость
Обстановка
Полная меблировка
Отопление
Есть
Парковка
Паркинг, Гараж
Бассейн
Частный
Количество бассейнов
1
На территории
Беседка, Джакузи, Барбекю
  • Вилла в Педрегере 554 м2 №VL213300781A  - Продажа - 1 mobile
  • Вилла в Педрегере 554 м2 №VL213300781A  - Продажа - 2 mobile
  • Вилла в Педрегере 554 м2 №VL213300781A  - Продажа - 3 mobile
  • Вилла в Педрегере 554 м2 №VL213300781A  - Продажа - 4 mobile
  • Вилла в Педрегере 554 м2 №VL213300781A  - Продажа - 5 mobile
  • Вилла в Педрегере 554 м2 №VL213300781A  - Продажа - 6 mobile
  • Вилла в Педрегере 554 м2 №VL213300781A  - Продажа - 7 mobile
  • Вилла в Педрегере 554 м2 №VL213300781A  - Продажа - 8 mobile
  • Вилла в Педрегере 554 м2 №VL213300781A  - Продажа - 9 mobile
  • Вилла в Педрегере 554 м2 №VL213300781A  - Продажа - 10 mobile
  • Вилла в Педрегере 554 м2 №VL213300781A  - Продажа - 11 mobile
  • Вилла в Педрегере 554 м2 №VL213300781A  - Продажа - 12 mobile
  • Вилла в Педрегере 554 м2 №VL213300781A  - Продажа - 13 mobile
  • Вилла в Педрегере 554 м2 №VL213300781A  - Продажа - 14 mobile
  • Вилла в Педрегере 554 м2 №VL213300781A  - Продажа - 15 mobile
  • Вилла в Педрегере 554 м2 №VL213300781A  - Продажа - 16 mobile
  • Вилла в Педрегере 554 м2 №VL213300781A  - Продажа - 17 mobile
  • Вилла в Педрегере 554 м2 №VL213300781A  - Продажа - 18 mobile
  • Вилла в Педрегере 554 м2 №VL213300781A  - Продажа - 19 mobile
  • Вилла в Педрегере 554 м2 №VL213300781A  - Продажа - 20 mobile
  • Вилла в Педрегере 554 м2 №VL213300781A  - Продажа - 21 mobile
  • Вилла в Педрегере 554 м2 №VL213300781A  - Продажа - 22 mobile
  • Вилла в Педрегере 554 м2 №VL213300781A  - Продажа - 23 mobile
  • Вилла в Педрегере 554 м2 №VL213300781A  - Продажа - 24 mobile
  • Вилла в Педрегере 554 м2 №VL213300781A  - Продажа - 25 mobile
  • Вилла в Педрегере 554 м2 №VL213300781A  - Продажа - 26 mobile
  • Вилла в Педрегере 554 м2 №VL213300781A  - Продажа - 27 mobile
  • Вилла в Педрегере 554 м2 №VL213300781A  - Продажа - 28 mobile
  • Вилла в Педрегере 554 м2 №VL213300781A  - Продажа - 29 mobile
  • Вилла в Педрегере 554 м2 №VL213300781A  - Продажа - 30 mobile
  • Вилла в Педрегере 554 м2 №VL213300781A  - Продажа - 31 mobile
  • Вилла в Педрегере 554 м2 №VL213300781A  - Продажа - 32 mobile
  • Вилла в Педрегере 554 м2 №VL213300781A  - Продажа - 33 mobile
  • Вилла в Педрегере 554 м2 №VL213300781A  - Продажа - 34 mobile
  • Вилла в Педрегере 554 м2 №VL213300781A  - Продажа - 35 mobile
  • Вилла в Педрегере 554 м2 №VL213300781A  - Продажа - 36 mobile
  • Вилла в Педрегере 554 м2 №VL213300781A  - Продажа - 37 mobile
  • Вилла в Педрегере 554 м2 №VL213300781A  - Продажа - 38 mobile
  • Вилла в Педрегере 554 м2 №VL213300781A  - Продажа - 39 mobile
  • Вилла в Педрегере 554 м2 №VL213300781A  - Продажа - 40 mobile
  • Вилла в Педрегере 554 м2 №VL213300781A  - Продажа - 41 mobile
  • Вилла в Педрегере 554 м2 №VL213300781A  - Продажа - 42 mobile
  • Вилла в Педрегере 554 м2 №VL213300781A  - Продажа - 43 mobile
  • Вилла в Педрегере 554 м2 №VL213300781A  - Продажа - 44 mobile
  • Вилла в Педрегере 554 м2 №VL213300781A  - Продажа - 45 mobile
  • Вилла в Педрегере 554 м2 №VL213300781A  - Продажа - 46 mobile
  • Вилла в Педрегере 554 м2 №VL213300781A  - Продажа - 47 mobile
  • Вилла в Педрегере 554 м2 №VL213300781A  - Продажа - 48 mobile
  • Вилла в Педрегере 554 м2 №VL213300781A  - Продажа - 49 mobile
  • Вилла в Педрегере 554 м2 №VL213300781A  - Продажа - 50 mobile
  • Вилла в Педрегере 554 м2 №VL213300781A  - Продажа - 51 mobile
Опубликован : 27.04.2021
Обновлен : 11.08.2022

Инна Полуянова
Денис Харац

Отдел продаж

Запросить информацию

Отправляя это сообщение, Вы принимаете условия
Пользовательского соглашения
Поделиться