Участок в Плайя-де-Аро 1705 м2 №VL2310233356C

10 500 000 €
Участок
7989 м2
Объект
1705 м2
До моря
90 м
Линия
1
Спален
5
Санузлов
5
Смотреть карту

Современная вилла в процессе строительства с выходом к морю в Плайя де Аро, Коста Брава, Испания.

Продается современная вилла в недостроенном состоянии, с великолепным огромным участком и видом на море, расположенная в привилегированном районе Плайя де Аро, с собственным выходом к морю к пляжу в бухте Cala Sa Cova, на побережье Коста Брава в Испании. На настоящий момент возведены несущие конструкции и стены виллы, что даёт Вам возможность внести изменения в наружный и внутренний дизайн в соответствии с Вашим вкусом и пожеланиями, включая расположение комнат, размеры и местоположение окон, дверей, толщину стен и многое другое.

Проектная площадь виллы – 1705 м2. Площадь участка – 7989 м2.

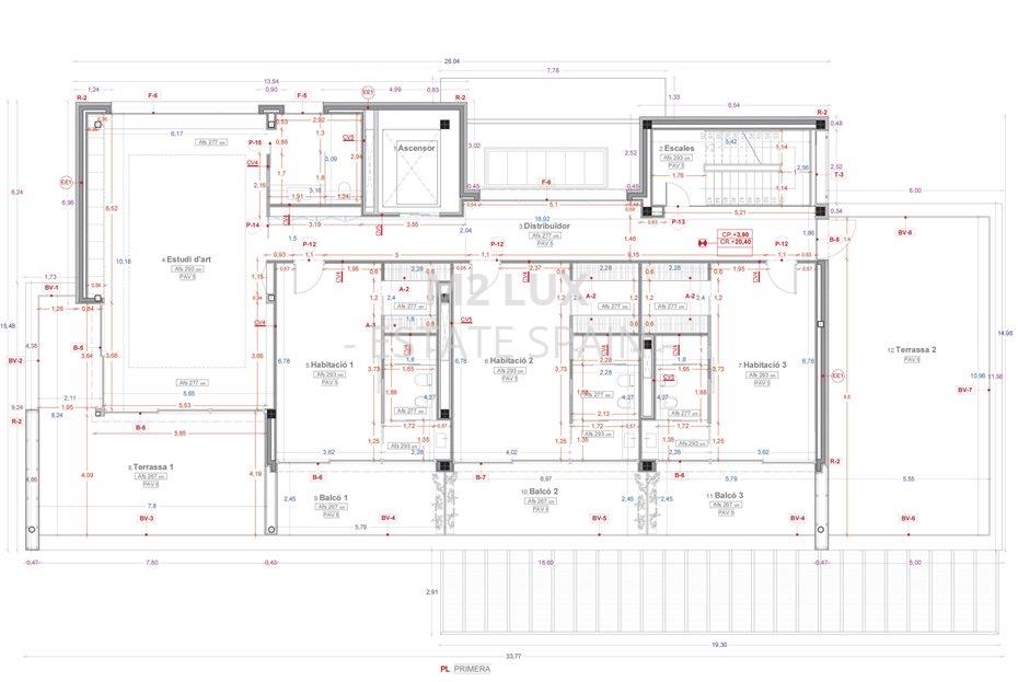
Распределение пространства виллы в соответствии с проектом.

1 этаж: Вестибюль с гардеробной. Просторный салон с камином и выходом на террасу к бассейну. Большая открытая кухня с отдельным помещением для хранения продуктов. Гостевой туалет. Лестница, ведущая на другие этажи дома. Лифт.

2 этаж: 3 спальни-сьют, каждая из них с собственной ванной комнатой и выходом на отдельный балкон. Просторная библиотека с выходом на балкон (может быть реформирована в спальню). Отдельная терраса (также может быть реформирована в спальню).

3 этаж: 2 спальни-сьют с собственной гардеробной и ванной комнатами, с выходом на огромную террасу, откуда открывается великолепный вид на побережье Плайя де Аро. Крыша 3 этажа может также использоваться как отдельная терраса.

Подземный этаж: Вместительный гараж на 6 -10 автомобилей. Спа-зона с хамамом, сауной, тренажерным залом. Прачечная, бодега, складские помещения. На этом этаже можно сделать дополнительные помещения для обслуживающего персонала.

На всех этажах оборудованы теплые полы.

На участке растут великолепные средиземноморские сосны.

Согласно градостроительным нормам Плайя де Аро, на данном участке также допускается строительство отеля (от 3 звезд и выше) и ресторана.

Дополнительная информация.

Участок с виллой отличается непревзойденным расположением в тихом и престижном районе Плайя де Аро. Город пользуется заслуженной популярностью среди отдыхающих благодаря своему потрясающему побережью с живописными бухтами и прекрасными песочными пляжами. Здесь имеется всё, что необходимо для комфортного отдыха или круглогодичного проживания – супермаркеты, банки, медицинские центры, магазины люксовой одежды от известных дизайнеров, изысканные рестораны средиземноморской кухни, яхт-клуб, английская школа для детей и многое другое. Расстояние до центра города составляет около 1 километра, неспешная прогулка пешком займет у Вас не более 15 минут.

Ближайший аэропорт, Жирона – Коста Брава, находится на расстоянии 34 километров (29 минут езды на машине). Расстояние до аэропорта Барселоны – 123 километра (1 час 20 минут езды на машине).

Комнат всего
6
Спален
5
Санузлов
5
Новостройка от собственника
да
Подходит под инвестиции
да
Объект
1705 м2
Участок
7989 м2
Состояние
Новостройки
Год постройки
2024
Лифт
Да
Обстановка
Без мебели
Парковка
Подземный паркинг
Количество мест парковки
6
Бассейн
Частный
Количество бассейнов
1
  • Участок в Плайя-де-Аро 1705 м2 №VL2310233356C  - Продажа - 1 mobile
  • Участок в Плайя-де-Аро 1705 м2 №VL2310233356C  - Продажа - 2 mobile
  • Участок в Плайя-де-Аро 1705 м2 №VL2310233356C  - Продажа - 3 mobile
  • Участок в Плайя-де-Аро 1705 м2 №VL2310233356C  - Продажа - 4 mobile
  • Участок в Плайя-де-Аро 1705 м2 №VL2310233356C  - Продажа - 5 mobile
  • Участок в Плайя-де-Аро 1705 м2 №VL2310233356C  - Продажа - 6 mobile
  • Участок в Плайя-де-Аро 1705 м2 №VL2310233356C  - Продажа - 7 mobile
  • Участок в Плайя-де-Аро 1705 м2 №VL2310233356C  - Продажа - 8 mobile
  • Участок в Плайя-де-Аро 1705 м2 №VL2310233356C  - Продажа - 9 mobile
  • Участок в Плайя-де-Аро 1705 м2 №VL2310233356C  - Продажа - 10 mobile
  • Участок в Плайя-де-Аро 1705 м2 №VL2310233356C  - Продажа - 11 mobile
  • Участок в Плайя-де-Аро 1705 м2 №VL2310233356C  - Продажа - 12 mobile
  • Участок в Плайя-де-Аро 1705 м2 №VL2310233356C  - Продажа - 13 mobile
  • Участок в Плайя-де-Аро 1705 м2 №VL2310233356C  - Продажа - 14 mobile
  • Участок в Плайя-де-Аро 1705 м2 №VL2310233356C  - Продажа - 15 mobile
  • Участок в Плайя-де-Аро 1705 м2 №VL2310233356C  - Продажа - 16 mobile
  • Участок в Плайя-де-Аро 1705 м2 №VL2310233356C  - Продажа - 17 mobile
  • Участок в Плайя-де-Аро 1705 м2 №VL2310233356C  - Продажа - 18 mobile
  • Участок в Плайя-де-Аро 1705 м2 №VL2310233356C  - Продажа - 19 mobile
  • Участок в Плайя-де-Аро 1705 м2 №VL2310233356C  - Продажа - 20 mobile
  • Участок в Плайя-де-Аро 1705 м2 №VL2310233356C  - Продажа - 21 mobile
  • Участок в Плайя-де-Аро 1705 м2 №VL2310233356C  - Продажа - 22 mobile
  • Участок в Плайя-де-Аро 1705 м2 №VL2310233356C  - Продажа - 23 mobile
  • Участок в Плайя-де-Аро 1705 м2 №VL2310233356C  - Продажа - 24 mobile
  • Участок в Плайя-де-Аро 1705 м2 №VL2310233356C  - Продажа - 25 mobile
  • Участок в Плайя-де-Аро 1705 м2 №VL2310233356C  - Продажа - 26 mobile
  • Участок в Плайя-де-Аро 1705 м2 №VL2310233356C  - Продажа - 27 mobile
  • Участок в Плайя-де-Аро 1705 м2 №VL2310233356C  - Продажа - 28 mobile
  • Участок в Плайя-де-Аро 1705 м2 №VL2310233356C  - Продажа - 29 mobile
  • Участок в Плайя-де-Аро 1705 м2 №VL2310233356C  - Продажа - 30 mobile
  • Участок в Плайя-де-Аро 1705 м2 №VL2310233356C  - Продажа - 31 mobile
  • Участок в Плайя-де-Аро 1705 м2 №VL2310233356C  - Продажа - 32 mobile
  • Участок в Плайя-де-Аро 1705 м2 №VL2310233356C  - Продажа - 33 mobile
  • Участок в Плайя-де-Аро 1705 м2 №VL2310233356C  - Продажа - 34 mobile
  • Участок в Плайя-де-Аро 1705 м2 №VL2310233356C  - Продажа - 35 mobile
  • Участок в Плайя-де-Аро 1705 м2 №VL2310233356C  - Продажа - 36 mobile
Расстояние до моря:
90 м
Линия от моря:
1
Опубликован : 25.10.2023
Обновлен : 25.10.2023

Инна Полуянова
Денис Харац

Отдел продаж

Запросить информацию

Отправляя это сообщение, Вы принимаете условия
Пользовательского соглашения
Поделиться