Вилла в Аспе 188 м2 №VL2510104302B

442 000 €
Участок
13172 м2
Объект
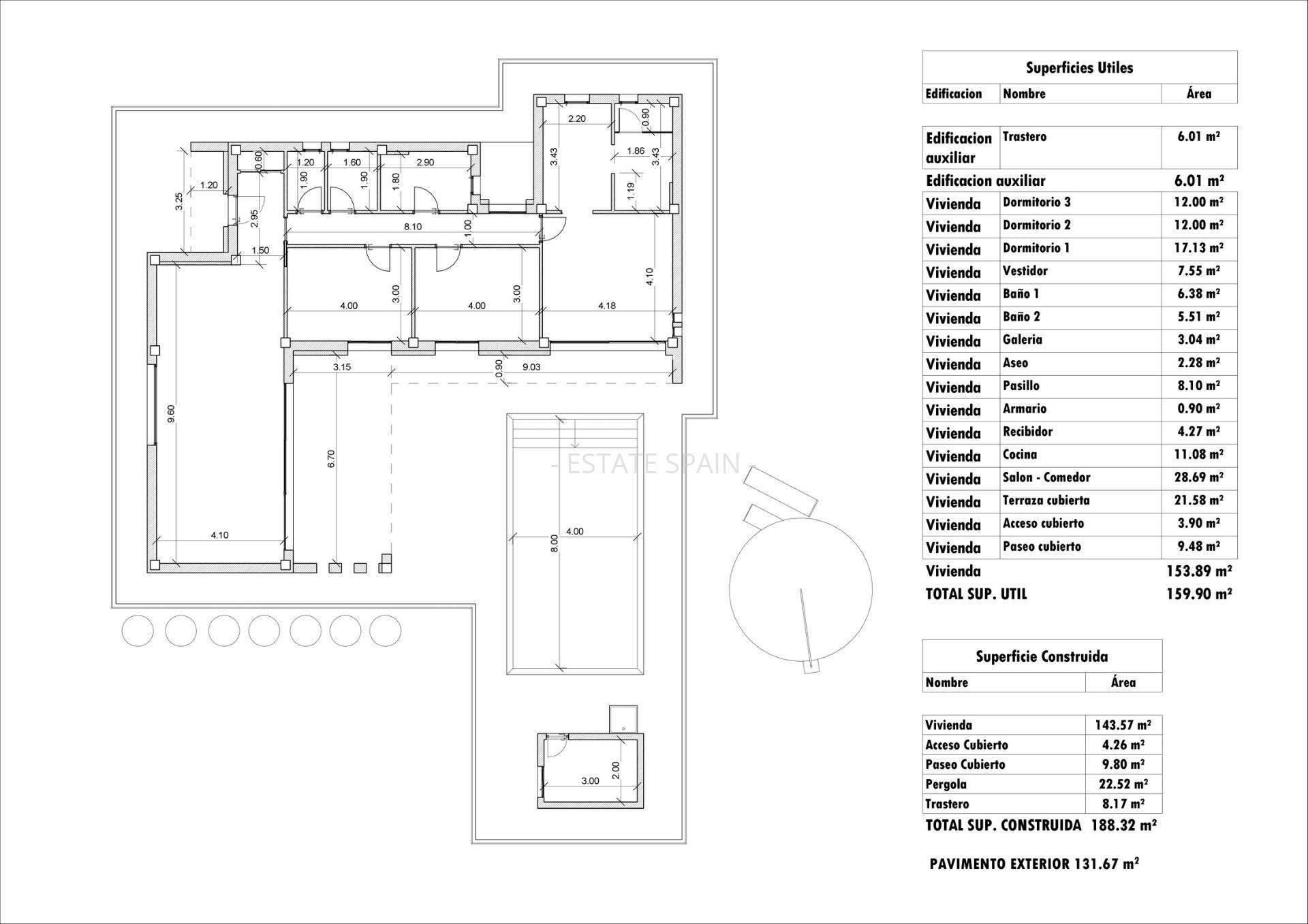
188 м2
До моря
22200 м
Спален
3
Санузлов
3
Смотреть карту

Новые виллы недалеко от Аспе.

Новые виллы представлены несколькими моделями на выбор: с 2, 3 или 4 спальнями, в один или два этажа, построенные с использованием плит или каркасной технологии. Точная цена будет рассчитана в зависимости от выбранной модели и участка.

Все виллы построены на участках площадью более 10 000 м², из которых около 2 500 м² будут огорожены.

Виллы располагают американской кухней, совмещённой с гостиной, встроенными шкафами, частным бассейном, верандой, кладовой и открытой парковкой.

На выбор предлагается несколько участков. Для расчёта цены был выбран участок стоимостью 77 500 евро (при выборе другого участка разница в цене будет доплачена или вычтена из стоимости).

Строительство ведётся на условиях самофинансирования, сдача объекта в эксплуатацию — примерно через 12 месяцев с момента получения лицензии.

Если вы ищете тихое место недалеко от типичных испанских деревень, вдали от массового туризма, в окружении гор, с большим участком и в 30 минутах от моря, то это ваш дом.

Аспе — типичная испанская деревня со всеми удобствами для повседневной жизни, окружённая горами и несколькими природными заповедниками, где можно заняться пешим туризмом или кататься на горных велосипедах.

Расположен в 25 км от пляжа, в 9 км от Эльче и в 20 км от аэропорта Аликанте.

В комплексе также доступны к продаже другие варианты по площади, цене и планировке. Подробности уточняйте у наших менеджеров.

Комнат всего
4
Спален
3
Санузлов
3
Сад, зеленая территория
Сад
Другое
Кладовка
Объект
188 м2
Участок
13172 м2
Состояние
Новостройки
Ремонт
Хорошее состояние
Обстановка
Бытовая техника, Встроенная мебель, Мебелированная кухня
Парковка
Паркинг
Бассейн
Есть
  • Вилла в Аспе 188 м2 №VL2510104302B  - Продажа - 1 mobile
  • Вилла в Аспе 188 м2 №VL2510104302B  - Продажа - 2 mobile
  • Вилла в Аспе 188 м2 №VL2510104302B  - Продажа - 3 mobile
  • Вилла в Аспе 188 м2 №VL2510104302B  - Продажа - 4 mobile
  • Вилла в Аспе 188 м2 №VL2510104302B  - Продажа - 5 mobile
  • Вилла в Аспе 188 м2 №VL2510104302B  - Продажа - 6 mobile
  • Вилла в Аспе 188 м2 №VL2510104302B  - Продажа - 7 mobile
  • Вилла в Аспе 188 м2 №VL2510104302B  - Продажа - 8 mobile
  • Вилла в Аспе 188 м2 №VL2510104302B  - Продажа - 9 mobile
Расстояние до моря:
22200 м
Рядом с объектом:
Ресторан, Церковь, Море, Спа, Спортзал, Лес, Пляж, Поле для гольфа, Школа
Опубликован : 11.10.2025
Обновлен : 09.02.2026

Инна Полуянова
Денис Харац

Отдел продаж

Запросить информацию

Отправляя это сообщение, Вы принимаете условия
Пользовательского соглашения
Поделиться