Дом в Пальма-де-Майорка 372 м2 №VL25796205A

610 000 €
Объект
372 м2
До моря
610 м
Спален
1
Санузлов
1
Смотреть карту

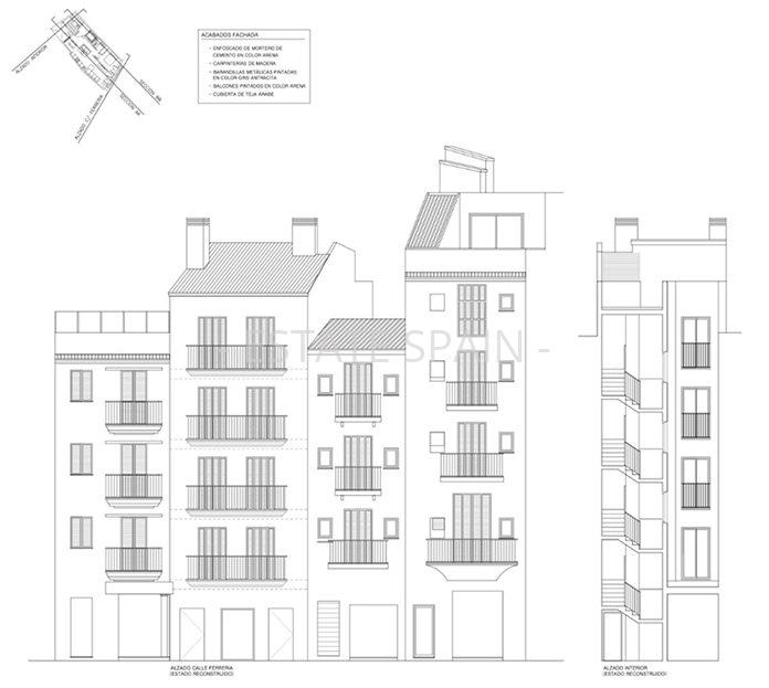
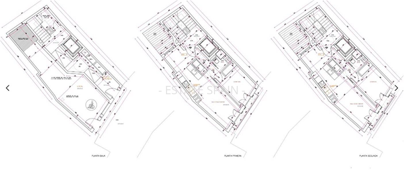
Продается здание с проектом реформы, расположенное в одном из самых желанных районов центра Пальмы, в Синдикате. Это здание предлагает прекрасную возможность для инвесторов или для тех, кто хочет построить проект недвижимости в привилегированном месте.Основные особенности:Первый этаж: Коммерческое помещение площадью 70 квадратных метров (из них 31,74 метра помещений общего пользования), идеально подходящее для организации бизнеса в районе с большим наплывом публики.Первый этаж: Жилье площадью 63,50 квадратных метра (в том числе 15,41 метра мест общего пользования), идеально подходящее в качестве городской резиденции в самом центре города.Второй этаж: Жилье площадью 63,50 квадратных метра (в том числе 15,41 метра мест общего пользования), дает возможность создать уютное и современное пространство.Третий этаж: Жилье площадью 63,50 квадратных метров (в том числе 15,41 метров общих помещений), с потенциалом стать комфортным домом со всеми удобствами.Четвертый этаж: Жилье площадью 63,50 кв.м. (в том числе 14,14 кв.м. мест общего пользования), с панорамным видом на город и возможностью оформления уникального пространства.Всего метров для строительства: 372,41Это здание имеет проект реконструкции, который позволяет адаптировать его для различных целей в соответствии с потребностями покупателя. Кроме того, его стратегическое расположение в центре Пальмы гарантирует легкий доступ ко всем услугам, общественному транспорту и достопримечательностям.Не упустите возможность инвестировать в этот уникальный проект в одном из самых востребованных районов Пальмы. Свяжитесь с нами для получения дополнительной информации и организации визита!

Комнат всего
1
Спален
1
Санузлов
1
Объект
372 м2
Состояние
Вторичная недвижимость
  • Дом в Пальма-де-Майорка 372 м2 №VL25796205A  - Продажа - 1 mobile
  • Дом в Пальма-де-Майорка 372 м2 №VL25796205A  - Продажа - 2 mobile
  • Дом в Пальма-де-Майорка 372 м2 №VL25796205A  - Продажа - 3 mobile
  • Дом в Пальма-де-Майорка 372 м2 №VL25796205A  - Продажа - 4 mobile
  • Дом в Пальма-де-Майорка 372 м2 №VL25796205A  - Продажа - 5 mobile
  • Дом в Пальма-де-Майорка 372 м2 №VL25796205A  - Продажа - 6 mobile
  • Дом в Пальма-де-Майорка 372 м2 №VL25796205A  - Продажа - 7 mobile
  • Дом в Пальма-де-Майорка 372 м2 №VL25796205A  - Продажа - 8 mobile
  • Дом в Пальма-де-Майорка 372 м2 №VL25796205A  - Продажа - 9 mobile
  • Дом в Пальма-де-Майорка 372 м2 №VL25796205A  - Продажа - 10 mobile
Расстояние до моря:
610 м
Опубликован : 09.07.2025
Обновлен : 09.07.2025

Инна Полуянова
Денис Харац

Отдел продаж

Запросить информацию

Отправляя это сообщение, Вы принимаете условия
Пользовательского соглашения
Поделиться